cad 2008自学教程:[26]cad 怎么添加字体
1、如下图上几篇画完的,不懂的话可以看看上几篇,懂的话单击左边工具栏A来添加字体。
![cad 2008自学教程:[26]cad 怎么添加字体](https://exp-picture.cdn.bcebos.com/18aebc5f0c14c27bffb4b63d2a46b7b1eff9398e.jpg)
2、在选择要在哪里输入字体,然后向上拖有一个方框。
![cad 2008自学教程:[26]cad 怎么添加字体](https://exp-picture.cdn.bcebos.com/a007a9b1eef97fbd7f4a0407b74133bad241338e.jpg)
3、这里输入签单专用图框,这里设置字体为120。
![cad 2008自学教程:[26]cad 怎么添加字体](https://exp-picture.cdn.bcebos.com/3d002dbad341037dd801f9c2a9bc7dc5ce672d8e.jpg)
4、如下图所显示就出来了签单专用图框了。
![cad 2008自学教程:[26]cad 怎么添加字体](https://exp-picture.cdn.bcebos.com/c8373cbc7dc5cf671569e5f28e96b814f5d0268e.jpg)
5、如下图在添加字体如下。
![cad 2008自学教程:[26]cad 怎么添加字体](https://exp-picture.cdn.bcebos.com/2a1ecb460596b814b6e685b743d246fe464e228e.jpg)
6、在输入要说的施工说明,说要对自己个方面的利益。
![cad 2008自学教程:[26]cad 怎么添加字体](https://exp-picture.cdn.bcebos.com/b442d6d246fe474e85b5030bb0ef354f51b81f8e.jpg)
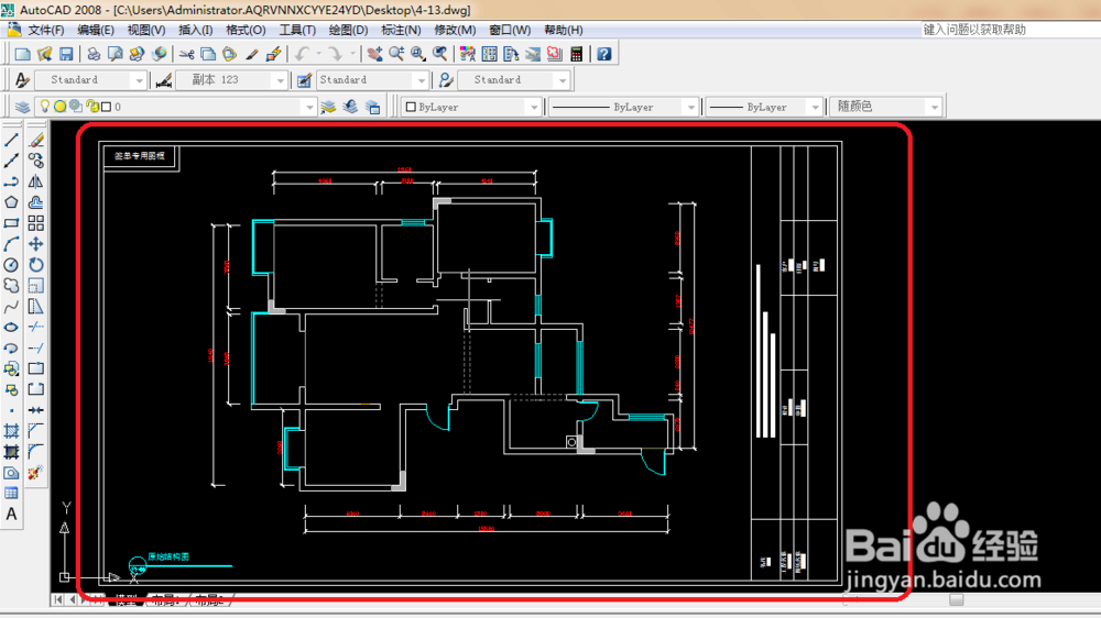
7、在输入如下图原始结构图。
![cad 2008自学教程:[26]cad 怎么添加字体](https://exp-picture.cdn.bcebos.com/32fe25ef354f50b8f808986fdc4afa32929c188e.jpg)
8、如下图就完成了添加字体。
![cad 2008自学教程:[26]cad 怎么添加字体](https://exp-picture.cdn.bcebos.com/a99a494afa32939c7dc1ef065719ce2c5a1b158e.jpg)
阅读量:190
阅读量:47
阅读量:182
阅读量:184
阅读量:25
1、如下图上几篇画完的,不懂的话可以看看上几篇,懂的话单击左边工具栏A来添加字体。
![cad 2008自学教程:[26]cad 怎么添加字体](https://exp-picture.cdn.bcebos.com/18aebc5f0c14c27bffb4b63d2a46b7b1eff9398e.jpg)
2、在选择要在哪里输入字体,然后向上拖有一个方框。
![cad 2008自学教程:[26]cad 怎么添加字体](https://exp-picture.cdn.bcebos.com/a007a9b1eef97fbd7f4a0407b74133bad241338e.jpg)
3、这里输入签单专用图框,这里设置字体为120。
![cad 2008自学教程:[26]cad 怎么添加字体](https://exp-picture.cdn.bcebos.com/3d002dbad341037dd801f9c2a9bc7dc5ce672d8e.jpg)
4、如下图所显示就出来了签单专用图框了。
![cad 2008自学教程:[26]cad 怎么添加字体](https://exp-picture.cdn.bcebos.com/c8373cbc7dc5cf671569e5f28e96b814f5d0268e.jpg)
5、如下图在添加字体如下。
![cad 2008自学教程:[26]cad 怎么添加字体](https://exp-picture.cdn.bcebos.com/2a1ecb460596b814b6e685b743d246fe464e228e.jpg)
6、在输入要说的施工说明,说要对自己个方面的利益。
![cad 2008自学教程:[26]cad 怎么添加字体](https://exp-picture.cdn.bcebos.com/b442d6d246fe474e85b5030bb0ef354f51b81f8e.jpg)
7、在输入如下图原始结构图。
![cad 2008自学教程:[26]cad 怎么添加字体](https://exp-picture.cdn.bcebos.com/32fe25ef354f50b8f808986fdc4afa32929c188e.jpg)
8、如下图就完成了添加字体。
![cad 2008自学教程:[26]cad 怎么添加字体](https://exp-picture.cdn.bcebos.com/a99a494afa32939c7dc1ef065719ce2c5a1b158e.jpg)